Ref # : GE3879
For Sale € 1,200,000.00
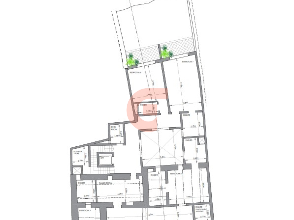
7 Bedroom House of Character
Munxar, GOZOOverview
The property in question is a typical character house spread over four floors, comprising a basement, ground, first, and second floors, and the airspace above. The front facade overlooks Triq il-Munxar. This dwelling is currently being redeveloped under an approved permit that proposes a Restoration of the existing building, demolition of accretions and additions, and alterations, including the construction of rooms at the back of the house, installation of a lift, and construction of a pool at roof level. Demolition and excavation works have been completed. When finished the property will essentially include a sizeable domestic store and a water reservoir at basement level, an entrance courtyard, a library, a study, a domestic store, a games room, a dining room, a kitchen, a main bathroom, a large central courtyard, two bedrooms both with ensuite bathrooms and a backyard at ground floor level, a main bathroom, a games room and five other bedrooms all with ensuite bathrooms and one with a walk-in-wardrobe at first floor level, and finally an infinity pool overlooking the back of the property, including services at second floor/roof level. All said levels are vertically connected with a stairwell and a lift. The old, front part of the property predominantly consists of typical thick limestone masonry walls (ћitan tal-mazkan), single leaf limestone walls (ћitan tad-disa franka) and limestone arches roofed over with stone slabs (xorok), timber beams and also in some cases with a system of xorok tal-qasba u kileb. The new extension being built at the back of the property consists of typical limestone masonry/hollow concrete blockwork walls, with stone arches, and is roofed with reinforced concrete beams and slabs.The property is freehold and has a footprint area of circa 500m²
Features
Base Information
General Amenities
Exterior Amenities
Giovanni Real Estate
One of the successful real estate agency in the Maltese Islands offering property for sale and turnkey solutions in Malta and Gozo. A vast range of,Apartments, Penthouses Maisonettes, Terraced Houses, Traditional Farmhouses, Houses of character ,Bungalows, Villas, Commercial outlets, property investments and properties for sale are available in Malta and Gozo.
Check out our website, the best place to start your real estate search. You can also contact our real estate agent for a customized selection of the property types you are interested in, including professional advice and opinion.









