Ref # : GE3917
For Sale € 220,000.00
Apartment
Nadur, GOZOOverview
Perched in an elevated position just a short walk from the iconic Kenuna Tower, sets a new benchmark for refined living in one of Gozo’s most desirable locations. This boutique development blends timeless Gozitan charm with a contemporary architectural approach, offering a rare combination of prestige, privacy, and long-term value.
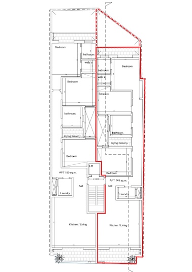
Comprises an exclusive collection of just ten residences, including two spacious maisonettes, six well-proportioned apartments, and two premium penthouses. Each unit has been thoughtfully designed to maximise natural light, comfort, and everyday liveability.
The development is further complemented by eight garages (sold separately), ensuring practical convenience in this highly sought-after area.
All units are being offered in shell form, including all common parts, allowing purchasers complete freedom to personalise interiors according to their own style and requirements. The project is being sold freehold, making it an ideal opportunity for both owner-occupiers and investors seeking a secure and enduring asset.
Scheduled for completion in mid-2027, Aurea Court represents a unique opportunity to secure a home in a landmark Nadur location where elevated living, architectural elegance, and lasting value come together.
Key Details
-
Total Units: 10
-
Garages (sold separately): 8
-
Status: Sold in shell form
-
Completion: Mid-2027
-
Tenure: Freehold
Features
Base Information
Parking Information
Building Information
General Amenities
Exterior Amenities
Interior Amenities
Giovanni Real Estate
One of the successful real estate agency in the Maltese Islands offering property for sale and turnkey solutions in Malta and Gozo. A vast range of,Apartments, Penthouses Maisonettes, Terraced Houses, Traditional Farmhouses, Houses of character ,Bungalows, Villas, Commercial outlets, property investments and properties for sale are available in Malta and Gozo.
Check out our website, the best place to start your real estate search. You can also contact our real estate agent for a customized selection of the property types you are interested in, including professional advice and opinion.

_page-0003.jpg)

