Ref # : GE3958
For Sale € 250,000.00
Penthouse
Sannat, GOZOOverview
Penthouse 7 – Sannat (Outskirts), Gozo
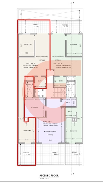
Located on the receded floor of a modern development on the peaceful outskirts of Sannat, this well-designed two-bedroom penthouse offers comfortable living with generous outdoor space.
The property measures 88.8 sqm internal area and 28.1 sqm external area and comprises a bright open plan kitchen, dining and living area leading onto a front terrace measuring approximately 15.1 sqm, ideal for outdoor dining and entertaining.
Accommodation includes 2 double bedroom, a main bathroom, and a practical layout designed to maximise natural light and functionality. At the rear, the property also enjoys an additional private terrace of approximately 13 sqm, providing further outdoor space perfect for relaxation.
This penthouse is being offered finished excluding internal doors and bathrooms, giving buyers the opportunity to personalise the finishing touches.
Optional garages available at the basement level.
An ideal residence, holiday home, or rental investment in Gozo.
Additional €10,000 for Lift and Common Parts.
Features
Base Information
Parking Information
General Amenities
Exterior Amenities
Interior Amenities
Giovanni Real Estate
One of the successful real estate agency in the Maltese Islands offering property for sale and turnkey solutions in Malta and Gozo. A vast range of,Apartments, Penthouses Maisonettes, Terraced Houses, Traditional Farmhouses, Houses of character ,Bungalows, Villas, Commercial outlets, property investments and properties for sale are available in Malta and Gozo.
Check out our website, the best place to start your real estate search. You can also contact our real estate agent for a customized selection of the property types you are interested in, including professional advice and opinion.



